Solide und großzügig, mit viel Platz, zusätzliche Ausbaumöglichkeit im DG, Garten, Garage

89079 Ulm, Einfamilienhaus zum Kauf

Kontaktdaten

Marcus Lindner, Immobilienkontor-Lindner

Objektdaten

  • Objekt ID
    6280
  • Objekttypen
    Einfamilienhaus, Haus
  • Adresse
    89079 Ulm
  • Wohnfläche ca.
    148 m²
  • Nutzfläche ca.
    80 m²
  • Vermietbare Fläche ca.
    148 m²
  • Grund­stück ca.
    599 m²
  • Zimmer
    5,5
  • Schlafzimmer
    4
  • Badezimmer
    2
  • Separate WC
    1
  • Terrassen
    1
  • Heizungsart
    Zentralheizung
  • Wesentlicher Energieträger
    Öl
  • Baujahr
    1972
  • Zustand
    gepflegt
  • Stellplätze gesamt
    2
  • Garagen
    2 Stellplätze
  • Verfügbar ab
    Kurzfristig
  • Käufer­provision
    4,165% inkl. MwSt. (3,5% netto zzgl. 19% MwSt).
    Siehe Details und Konditionen in der Beschreibung.
  • Kaufpreis
    650.000 EUR

Ausstattung / Merkmale

  • ✓ Kamin
  • ✓ Keller
  • ✓ Separates WC
  • ✓ Terrasse

Energieausweis

  • Energieausweistyp
    Bedarfs­ausweis
  • Gültig bis
    22.10.2035
  • Gebäudeart
    Wohngebäude
  • Baujahr lt. Energieausweis
    1972
  • Primärenergieträger
    Öl
  • Endenergie­bedarf
    270,04 kWh/(m²·a)
  • Energie­effizienz­klasse
    H

Objekt­beschreibung

Beschreibung

Großzügig gebautes Haus in ruhiger Lage im beliebten Ulmer Ortsteil Donaustetten

Sehr gut erhalten und gepflegt

Ausbaupotential für eine Wohnung im Dachgeschoss

Bitte lesen Sie das Exposé vollständig durch, bevor Sie anfragen! Anfragen werden nur beantwortet bei Angabe der vollständigen Adresse UND Telefonnummer. Bitte stellen Sie zuerst eine Anfrage per Mail/über das Portal, bevor Sie anrufen. Gerne rufen wir Sie danach zurück.

Schauen Sie immer zuerst auf unsere Website https://lindner.immo/ , NUR DORT finden Sie alle aktuellen Immobilienangebote!

ERDGESCHOSS
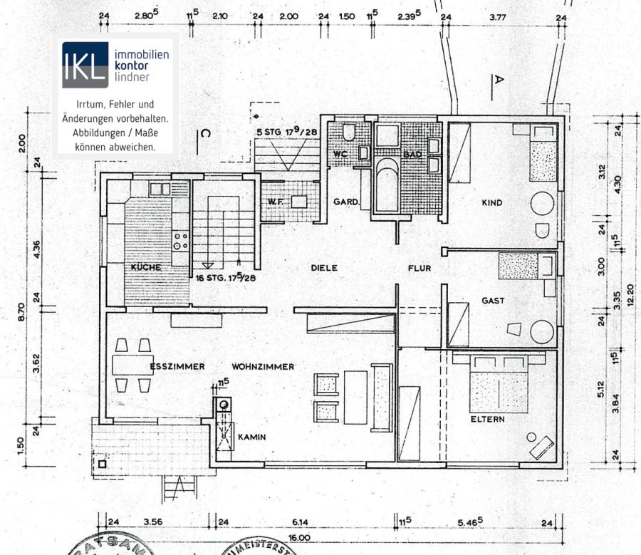
- Eingangsflur / große Eingangshalle
- Gäste-WC mit Bidet
- Badezimmer mit Wanne, Dusche und 2 Handwaschbecken
- Kinder-/Gästezimmer 1
- Kinder-/Gästezimmer 2
- Großes Schlafzimmer / Eltern
- Wohnzimmer mit Kaminofen
- Essbereich im Wohnzimmer mit Ausgang zur Terrasse West (überdacht)
- Terrasse, überdacht
- Treppenaufgang/-abgang zum DG/Keller

DACHGESCHOSS
- Gästezimmer (wurde bei der Wohnfläche nicht berücksichtigt / mitgerechnet)
- Badezimmer mit Dusche, Wanne, Waschbecken und Bidet
- Ausbaufläche, groß
- Die Küchenanschlüsse sind bereits vorbereitet

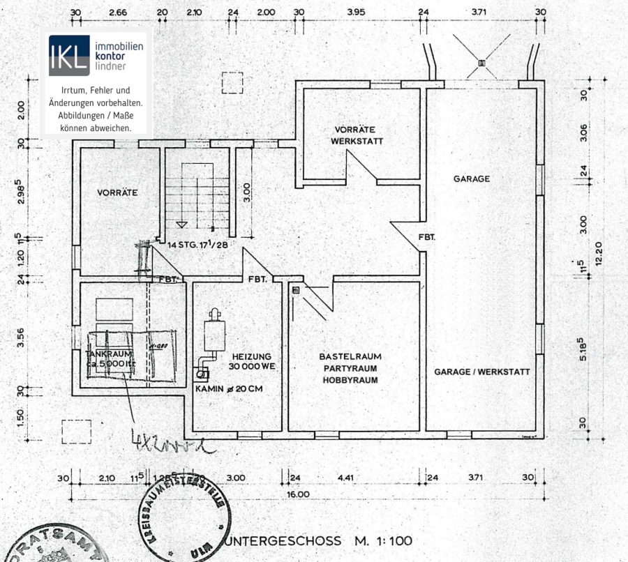
KELLER
- Große Garage mit Platz für 2 Autos (hintereinander)
- Großer Kellerflur mit Bereichen zum Abstellen von Fahrrädern etc.
- Heizöllagerraum
- Heizungsraum und Waschküche
- Werkstattraum
- Hobby-/Partyraum
- Vorratsraum / Lagerraum

Infos zu den erfolgten Sanierungs-/Renovierungsmaßnahmen und weitere Details zur Ausstattung finden Sie aufgelistet weiter unten unter dem Punkt AUSSTATTUNG BESCHREIBUNG.

Telefonische Auskünfte werden nicht erteilt, wenn Sie uns nicht vorher / vorab eine schriftliche Anfrage via Internetportal / Website unter Angabe Ihrer vollständigen Kontaktdaten zugesendet haben (ja, bitte auch eine gültige Telefonnummer!). Vielen Dank für Ihr Verständnis und Ihre Kooperation!

Bitte lesen Sie die Objektbeschreibung sorgfältig und vollständig durch, bevor Sie eine Anfrage stellen.

Aktueller Stand der Informationen im Exposé / Immobilienangebot: 31. März 2026
Bei Rückfragen geben Sie bitte die Immobiliennummer 6280 an.
Zuständiger Makler: Marcus Lindner

Fragen Sie jetzt Ihren persönlichen Besichtigungstermin an und machen Sie sich ein eigenes Bild von dieser interessanten Immobilie. Besichtigungstermine werden nur vergeben, wenn Sie uns vorab / vorher eine Finanzierungsbestätigung oder einen Eigenkapitalnachweis unaufgefordert vorab zusenden.

Verpassen Sie nicht Ihre Chance!

Ausstattung

- Massivbau Baujahr 1972

- Öl-Zentralheizung, voll funktionstüchtig, Baujahr 1972

- Holz-Isolierfenster in gutem Zustand

- Parkett im Wohn-/Esszimmer

- Fliesen im Eingangsflur / Eingangshalle und im Keller

- Fliesen in der Küche / im Bad / WC

- Teppichböden in den Schlaf-/Kinder-/Gästezimmern

- Hochwertige Holztreppe

RENOVIERUNGEN / WOHN- UND MIETVERHÄLTNISSE / SONSTIGES

- Neues Badezimmer im DG vor ca. 8-10 Jahren eingebaut

- Renovierung der Küche ca. 2006

- 2006 Neue Einbauküche mit Kühlschrank, Geschirrspüler, Schubfächern mit Auszug

- Fassadenrenovierung vor ca. 10-12 Jahren

- Die Immobilie ist in einem sehr guten gepflegten Zustand

- Die Immobilie wird unvermietet verkauft, wird leer an den Käufer übergeben

- Die Grundsteuer für diese Immobilie beträgt pro Jahr 467,42 Euro

- Weitere Details, Unterlagen, Abrechnungen, weitere Fotos etc. erhalten Sie nach Vereinbarung eines Besichtigungstermins und vorheriger Zusendung einer entsprechenden Finanzierungsbestätigung oder eines Kapitalnachweises, gerne auf Anfrage zugesendet

- Die Ausbaumöglichkeiten im DG sind vom Käufer zu prüfen, hierzu ist ein Architekt/Bauplaner zu konsultieren und eine entsprechende Anfrage beim Bauamt selber zu stellen, die Verkäufer und das Maklerbüro übernehmen keine Zusicherung oder Haftung für eine bestimmte Art und Weise oder Umfang des Ausbaus im DG und der hierbei entstehenden Kosten

- Nach dem Notartermin ist ein zeitnaher Termin zur Übergabe / Übernahme der Immobilie möglich, nach Vereinbarung

Gerne sind wir bei der Vermittlung einer Finanzierung behilflich und stehen Ihnen für weitere Informationen und zur Abstimmung zur Verfügung. In der Regel haben Sie nach zwei Arbeitstagen eine Finanzierungsbestätigung vorliegen, wenn Sie unsere Experten nutzen.

Fragen Sie in 3 Minuten eine Finanzierungsbestätigung oder ein Kreditangebot an, unverbindlich und kostenlos, klicken Sie auf den folgenden Link:

https://lindner.immo/service/finanzierung-immobilienfinanzierung

Sonstige Informationen

Hinweis zur Widerrufsbelehrung für Verbraucher! Diese gesetzliche Regelung gilt leider seit einigen Jahren, ein vorgeschriebener Text, der nicht verändert werden darf! Auch wenn dieser teilweise oder grundsätzlich gar nicht zutrifft für die Abwicklung / die Immobilienbranche. Es tut uns leid, wir sind nicht verantwortlich für schlecht gemachte Gesetzgebung ...

Widerrufsbelehrung für Verbraucher: Sie haben das Recht, binnen vierzehn Tagen ohne Angabe von Gründen diesen Vertrag zu widerrufen. Die Widerrufsfrist beträgt vierzehn Tage ab dem Tag des Vertragsabschlusses. Um Ihr Widerrufsrecht auszuüben, müssen Sie uns, Immobilienkontor-Lindner Vermarktungsgemeinschaft, Benzstrasse 18, DE 89079 Ulm, mittels einer eindeutigen Erklärung - z. B. ein mit der Post versandter Brief oder E-Mail - über Ihren Entschluss, diesen Vertrag zu widerrufen, informieren. Zur Wahrung der Widerrufsfrist reicht es aus, dass Sie die Mitteilung über die Ausübung des Widerrufsrechts vor Ablauf der Widerrufsfrist absenden.
Folgen des Widerrufs (gültig ab 13.06.2014, gesetzlich vorgeschriebener Standardtext) Wenn Sie diesen Vertrag widerrufen, haben wir Ihnen alle Zahlungen, die wir von Ihnen erhalten haben, unverzüglich und spätestens binnen vierzehn Tagen ab dem Tag zurückzuzahlen, an dem die Mitteilung über Ihren Widerruf dieses Vertrags bei uns eingegangen ist. Für diese Rückzahlung verwenden wir dasselbe Zahlungsmittel, das Sie bei der ursprünglichen Transaktion eingesetzt haben, es sei denn, mit Ihnen wurde ausdrücklich etwas anderes vereinbart; in keinem Fall werden Ihnen wegen dieser Rückzahlung Entgelte berechnet.
Haben Sie verlangt, dass die Dienstleistungen während der Widerrufsfrist beginnen soll, so haben Sie uns einen angemessenen Betrag zu zahlen, der dem Anteil der bis zu dem Zeitpunkt, zu dem Sie uns von der Ausübung des Widerrufsrechts hinsichtlich dieses Vertrags unterrichten, bereits erbrachten Dienstleistungen im Vergleich zum Gesamtumfang der im Vertrag vorgesehenen Dienstleistungen entspricht.

Provision und Beauftragung

Die angegebene Käuferprovision ist bei Unterzeichnung des notariellen Kaufvertrages verdient, fällig und vom Käufer zu zahlen. Bei der zusätzlichen Angabe einer Mindestprovision gilt immer der höhere Betrag, abhängig vom beurkundeten Kaufpreis. Der Maklerauftrag / Maklervertrag kommt durch die Inanspruchnahme unserer Maklertätigkeit auf der Basis unseres Angebotes, ersichtlich in den hierin vorliegenden Informationen in der hierin bereitgestellten Objektbeschreibung (Exposé) und den darin genannten Bedingungen und Konditionen oder durch schriftliche Vereinbarung zustande. Der Makler ist sowohl für die Käufer- als auch für die Verkäuferseite tätig. Es gelten unsere Allgemeinen Geschäftsbedingungen und / oder die individuellen Vereinbarungen.
Käuferprovision 4,165% inkl. MwSt. (3,5% netto zzgl. 19% MwSt).

Anbieter dieses Angebotes:

Marcus Lindner / Immobilienkontor-Lindner, Benzstr. 18, 89079 Ulm

E-Mail: lindner@lindner.immo  Web: www.lindner.immo Zentrale Tel.0731-60319030

Steuernr.: USt.Id. DE264678231

V.i.S.d.P. / Datenschutzbeauftragter / Inhaltlich verantwortlich gem. §10 Abs. 3 MDStV: Marcus Lindner

Berufsrechtliche Regelungen:  § 34c GewO  und  Makler- und Bauträgerverordnung (MaBV) - Die berufsrechtlichen Regelungen der GewO / der MaBV können über die Webseite des Bundesministeriums der Justiz und der juris GmbH  www.gesetze-im-internet.de eingesehen / abgerufen werden.

In Kooperation mit: Immobilienkontor-Lindner Vermarktungsgemeinschaft, Geschäftsleitung / Inhaber: Marcus Lindner - Benzstr. 18, 89079 Ulm - Steuernummer: USt.Id. DE264678231 - Gewerbeerlaubnis: gemäß § 34c der Gewerbeordnung (GewO) erteilt durch das Landratsamt Alb-Donau-Kreis, Schillerstr. 30, 89077 Ulm, Aufsichtsbehörde: IHK Karlsruhe Lammstraße 13-17 76133 Karlsruhe

Lassen Sie sich vormerken und erhalten Sie Angebote vorab!

Lage

- In ruhiger Lage im beliebten Ulmer Ortsteil Donaustetten gelegen

- Keine Durchgangsstraße, hier sind nur die Bewohner und Lieferanten unterwegs

- Kindergärten, Schulen, Ärzte, Apotheken, Gastronomie, Einkaufsmöglichkeiten finden Sie in der nahen Umgebung, wenige hundert Meter entfernt oder im Umkreis von 1-3 km

- Entfernung zu Supermärkten: REWE 561 m, REWE 2,4 km, Lidl 2,6 km, Kaufland 2,7 km

- Auf der Siedlungsstraße direkt vor der Immobilie gibt es Parkmöglichkeiten für Besucher

Angebot und Objektdaten

Das vollständige Exposé inklusive aller Informationen enthalten in dieser Objektbeschreibung (Exposé) sind fester Bestandteil dieses Immobilienangebotes, bei Anfrage eines Besichtigungstermins und Abgabe einer Kaufabsichtserklärung erkennen Sie dies als Käufer/Kaufinteressent an.
Die in der Objektbeschreibung enthaltenen Angaben wurden vom Eigentümer (Verkäufer) bereitgestellt, der Makler ist nicht zu eigenen Nachforschungen verpflichtet und übernimmt auch keine Haftung für die Richtigkeit, Aktualität und Vollständigkeit der Angaben. Der Makler haftet nur bei Vorsatz und grober Fahrlässigkeit. Alle Angaben sind circa Angaben und können abweichen. Irrtum, Fehler und Änderungen sind vorbehalten. Dieses Angebot ist freibleibend. Der Zwischenverkauf an andere Interessenten bleibt vorbehalten, so lange bis Sie eine Reservierung abgegeben haben und diese vom Verkäufer verbindlich bestätigt wurde. Bei Kauf erwerben Sie eine Gebrauchtimmobilie, wie üblich ohne Garantie und ohne Gewährleistung. Sie kaufen eine gebrauchte Sache im aktuellen Zustand "wie besichtigt". Grundrisse sind nicht maßstabsgerecht abgebildet und können abweichen, sie dienen der schematischen Darstellung. Gerne stellen wir Ihnen Kopien der Originale (bemasste Grundrisse und weitere Unterlagen zur Immobilie) auf Anfrage zur Verfügung (soweit diese vorhanden und zur Verfügung gestellt worden sind). Der Makler und Verkäufer übernimmt keine Haftung oder Gewähr und sichert auch keine Eigenschaften zu für die Nutzungsart, Aufteilung, Grundrisse und Flächenangaben. Der Käufer wird hiermit aufgefordert diese Maße und Details mit Hilfe der Unterlagen (Originale sind anzufordern) und auf Grund der tatsächlichen Verhältnisse vor Ort zu überprüfen oder von einem Architekten o.ä. vor Reservierung der Immobilie oder vor Abschluss des Kaufvertrages prüfen zu lassen. Falls im Exposé keine Daten zum Energieverbrauch / Energieausweis enthalten sind, wird dieser nicht benötigt oder wird zur Zeit erstellt und kann zeitnah auf Anfrage vorgelegt werden. Sämtliche Unterlagen sind vertraulich zu behandeln, es ist untersagt diese an Dritte weiter zu geben, egal in welcher Form.

Sobald wir einen Besichtigungstermin mit Ihnen vereinbart haben, erhalten Sie einen Zugangslink zur Datencloud, dort sind weitere Zusatzinformationen und Details zur Immobilie hinterlegt. Somit sind Sie in der Lage zeitnah nach der Besichtigung eine Kaufentscheidung zu treffen. Bei der Besichtigung erhält jeder Interessent persönlich ein Formular für die Reservierung / Kaufabsichtserklärung übergeben.

Besichtigung

Die Besichtigung darf nur in Absprache mit dem Makler und im Beisein des Maklers vorgenommen werden. Der Makler wurde exklusiv beauftragt und übt das Hausrecht aus. Die Besichtigung des Objekts und die Bereitstellung von Informationen oder Unterlagen zum Objekt ist für die Interessenten kostenfrei.

Die enthaltenen Texte und Inhalte dieses Exposés sind urheberrechtlich geschützt.

Die dargestellte Position der Immobilie ist nur eine ungefähre Angabe.

Direktanfrage

* Pflichtangaben
 SSL-verschlüsselt
Immobiliendaten-Import und Darstellung für WordPress: WP-ImmoMakler®